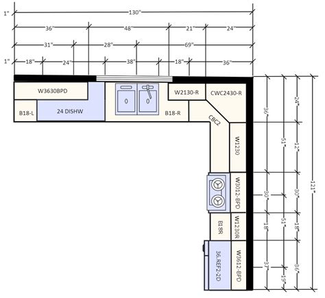
kitchen layout l shaped drawing. There are any references about kitchen layout l shaped drawing in here. you can look below.